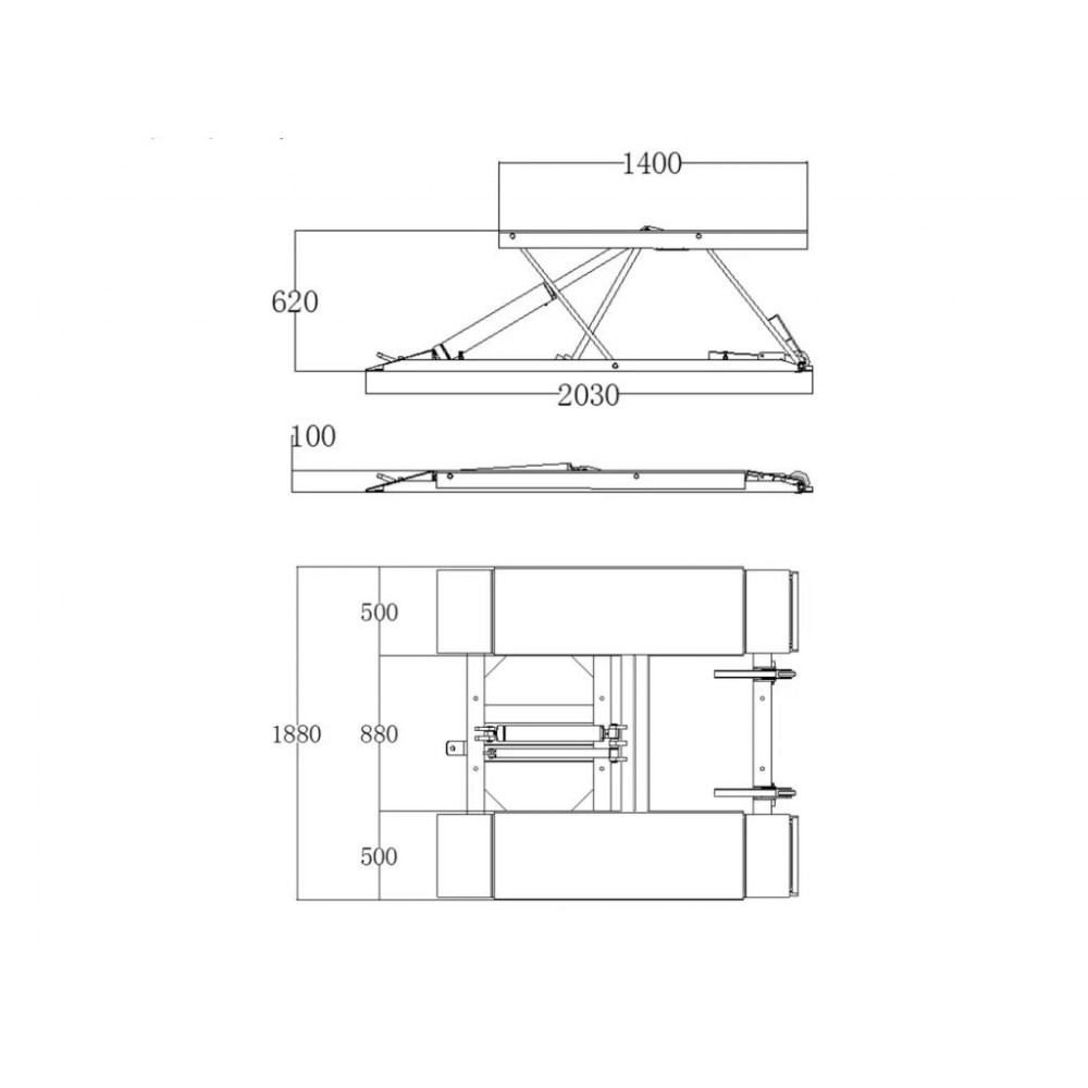
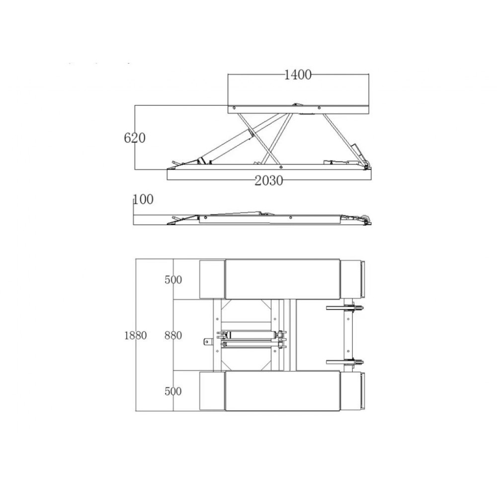
Ножичний підйомник REDATS L-520F з компактною, портативною конструкцією буде ідеальним варіантом для СТО і шиномонтажів з невеликою робочою площею. Займає небагато місця, легко переміщується за допомогою роликів і швидко позиціонується в потрібній точці. Висота основи 100 мм дозволяє використовувати цей підйомник для автомобілів з низьким кліренсом. Вантажопідйомність 3 тонни забезпечує ефективну роботу з легковими авто, мікроавтобусами і легким комерційним транспортом. Максимальна висота підйому становить 620 мм.
Підйом і опускання займають всього 25 с і виконуються натисканням кнопки. Платформа оснащена заїзними смугами зі спеціальними канавками для полегшення заїзду автомобіля. В комплект поставки входять 4 гумові накладки, які запобігають ковзанню авто при підйомі і захищають його несучі частини. Міцна металева конструкція робить цей портативний підйомник для авто надзвичайно довговічним. Цей підйомник повністю мобільний. Ви можете легко перемістити його в будь-яке місце у Вашій майстерні!
Особливості ножичного підйомника REDATS L-520F
- Вантажопідйомність - 3 тонни
- Діапазон підйому - 100-620 мм
- Час підйому/опускання - 25 с
- Керування підйомом/опусканням натисканням кнопок
- Електродвигун потужністю 2,2 кВт
- Живлення від напруги 230 В
- Довжина платформ (без пандусів) - 1400 мм
- Загальна довжина (з пандусами) - 2030 мм
- Заїзні смуги зі спеціальними канавками на платформі
- 4 гумові накладки в комплекті поставки
- Ролики для переміщення
- Компактна, мобільна конструкція
- Матеріал виготовлення - сталь з антикорозійним покриттям.
Часті запитання
Більше про портативні ножичні підйомники читайте у відповідях на популярні запитання.
Яка типова вантажопідйомність портативного ножичного підйомника?
У більшості моделей портативних ножичних підйомників вантажопідйомність варіюється від 2 до 4 тонн.
Яку мінімальну висоту має платформа ножичного підйомника у складеному стані?
Зазвичай від 100 до 130 мм, що дозволяє використовувати такий підйомник навіть для авто з низьким кліренсом.
Чи потребує портативний ножичний підйомник спеціального монтажу?
Для більшості портативних ножичних підйомників достатньо рівної бетонної підлоги. Але існують моделі, що вимагають анкерного кріплення.
Які бувають типи ножичних підйомників за конструкцією?
За конструкцією ножичні підйомники бувають:
- Поверхневі — ставляться зверху на підлогу
- Вбудовані в підлогу — естетичні, зручні, але потребують монтажу
- Мобільні з колесами — можна легко переміщати по майстерні.
На які параметри звертати увагу при виборі ножичного підйомника?
Найбільш важливі такі параметри:
- Вантажопідйомність
- Висота основи
- Максимальна висота підйому
- Розмір платформи
- Живлення (220/380 В)
- Системи фіксації та безпеки
- Якість та матеріали конструкції.











